Сепараторы-пробкоуловители предназначены для улавливания жидкостных пробок, которые образуются при передвижении газожидкостных сред по трубопроводам перед подачей рабочей среды на технологическое оборудование в установках комплексной подготовки газа, компрессорных станциях и других объектах.
Помимо удаления пробок, пробкоуловители очищают выходящий газ газа от капельной влаги и твердых загрязнений, а также производят первичное разделение сред.
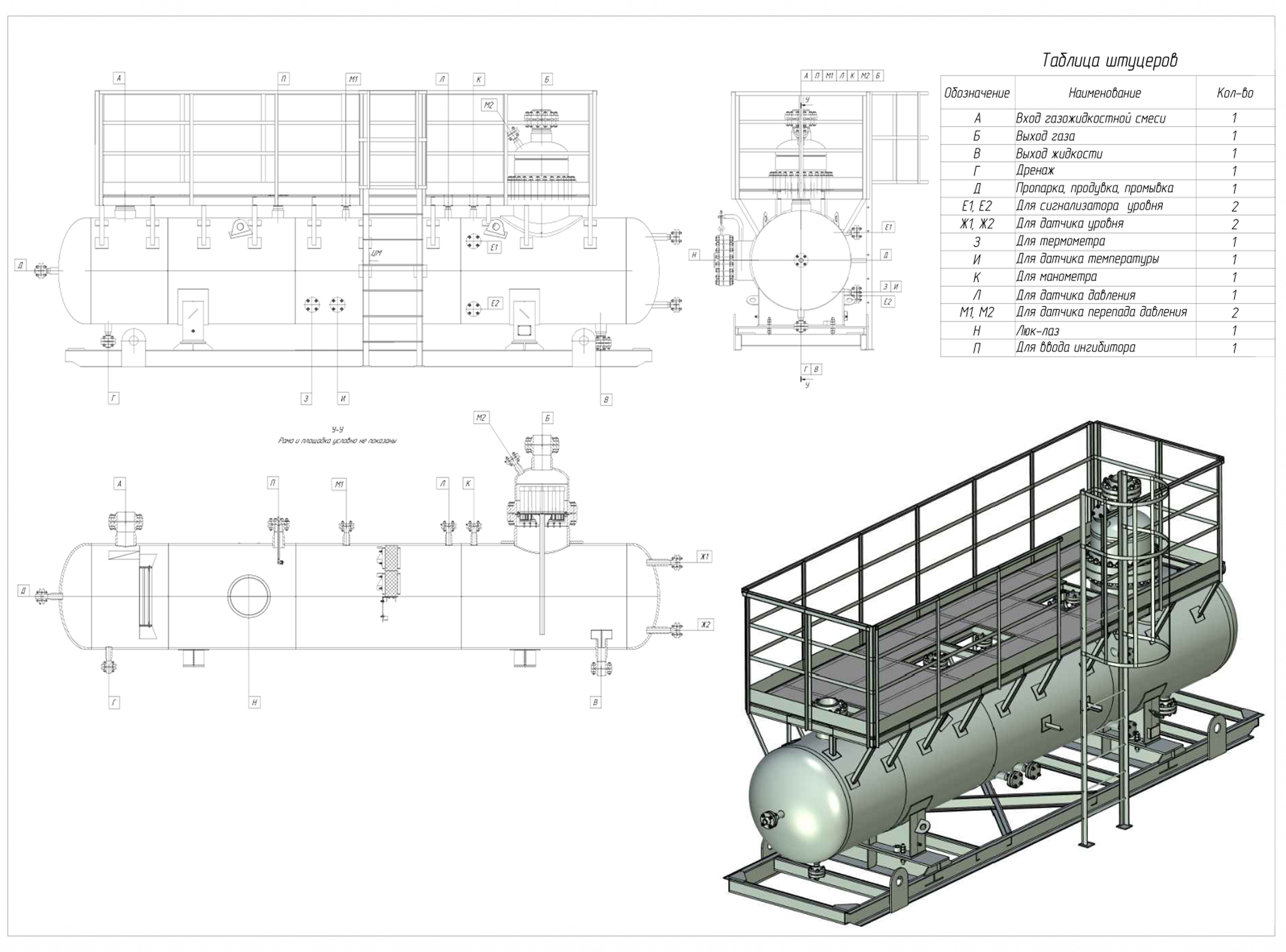
Пробкоуловитель представляет собой горизонтальный цилиндрический сосуд с технологическими и штуцерами и элементами внутреннего устройства: секцией приема, осадительной и отбойной секцией, а также секцией, расположенной в верхней части сепаратора и оснащенной центробежными сепарационными элементами (при необходимости тонкой очистки газа).
В обязательном порядке пробкоуловитель содержит штуцеры для установки приборов контроля за внутренним давлением, уровнем жидкости и т.д.
Запорно-регулирующая арматура, ЗИП, поворотные заглушки (обтюраторы), приборы КИПиА, предохранительная арматура, теплоизоляция и система обогрева, площадки обслуживания – всё это может быть изготовлено, и поставлено нашей компанией в случае, если такая комплектация оговорена при заключении договора поставки.
Обратившись в отдел маркетинга ООО «Химмаш» по электронной почте marketing@penzahim.ru Вы сможете получить технико-коммерческое предложение с приложенным эскизом конструкции и расчетом стоимости сепаратора-пробкоуловителя.